來源:遠東泵業 發布日期
2019-06-25 16:16 瀏覽:-臥式離心油泵,離心油泵,臥式油泵
一、臥式防爆離心油泵概述
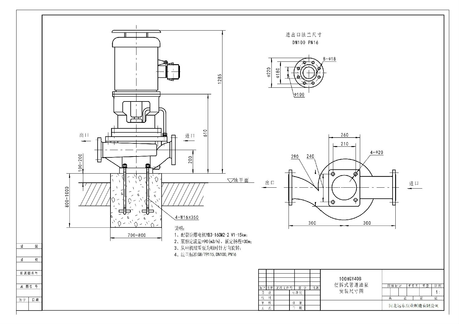
HYZG型臥式油泵采用zui的水力模型,根據立式離心泵之性能參數和臥式離心泵的特殊結構組合設計,并嚴格按照iso2858進行設計制造,該防爆離心油泵產品軸封選用硬質合金機械密封裝置,具有節能、性能可靠、安裝使用方便等特點。
二、臥式防爆離心油泵主要特點
臥式油泵運行平穩:泵軸的同心度及葉輪優異的動靜平衡,保證平穩運行,絕無振動。
臥式油泵滴水不漏:不同材質的硬質合金密封,保證了不同介質輸送均無泄漏。
臥式防爆離心泵噪音低:兩個低噪音的軸承支撐下的水泵,運轉平穩,除電機微弱聲響,基本無噪音。
離心油泵故障率低:結構簡單合理,關鍵部分采用*品質配套,整機無故障工作時間大大提高。
臥式離心油泵維修方便:更換密封、軸承、簡易方便。
臥式離心油泵占地更省:出口可向左、向右、向上三個方向,便管道布置安裝,節省空間。

上圖為CYZ臥式防爆離心油泵
三、主要用途
1、HYZG型臥式單級單吸離心泵供輸送清水及物理化學性質類似于清水的其它液體之用,適用于工業和城市給排水、高層建筑增壓送水、園林噴灌、消防增壓、遠距離輸送、暖通制冷循環、浴室等冷暖水循環增壓及設備配套,使用溫度t≤80℃。
2、HYZG型臥式熱水循環泵 廣泛適用于:冶金、化工、紡織、造紙以及賓館飯店等鍋爐熱水增壓循環輸送及城市采暖系統,iswr型使用溫度t≤120℃。
3、HYZG型耐腐蝕管道泵供輸送不含固體顆粒,具有腐蝕性、粘度類似于水的液體,適用于石油、化
工、冶金、電力、造紙、食物制藥和合成纖維等部門,使用溫度為-20℃~ 120℃。
4、HYZG型臥式油泵,供輸送汽油、煤油、柴油等油類產品或易燃、易爆液體,被輸送介質溫度為-20~ 120℃。


上圖為HYZG臥式防爆離心油泵

遠東泵業30多年來一直堅持為客戶創造價值!
我們在努力了解您的需求,遠東泵業提供給您的不僅僅是產品,還有的流體輸送解決方案。為你解決流體輸送的難題,讓你省心又省力!如果有任何關于流體輸送泵的疑問,請立即撥打遠東泵業免費咨詢熱線:020-82375311,我們會為您提供貼心的服務!
全國服務熱線:020-82375311
聯系電話:020-82375311
傳真:020-82386622
聯系QQ:2853715911
公司地址:廣州市黃埔區黃埔東路621號
【本文標簽】:180#燃料油裝車泵 180#燃料油卸車泵 4#燃料油裝車泵
【責任編輯】:遠東泵業 版權所有:http://m.cdhte.com/轉載請注明出處